
Year
2022
Name
Description
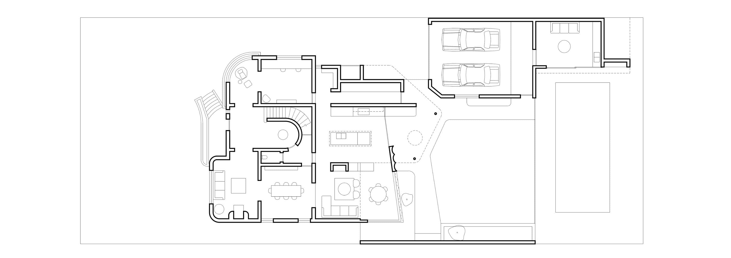
There’s a quiet sort of presence to Deco House. You notice it in the weight of the original structure, the proportions of the facade, the way light hits the steel-framed windows. Originally designed by Edith Ingpen, the first woman to graduate with a Bachelor of Architecture from the University of Melbourne, the 1930s home sits firmly in its context. The project began not with reinvention, but with care. Peeling back the layers, the bones were still there.













Enter project archive

Location
Balwyn
Type
Residential
Internal Area
260sqm
Size
780sqm
Team
Kerry Kounnapis
Images
Zachary McPherson