
Year
2022
Name
Description
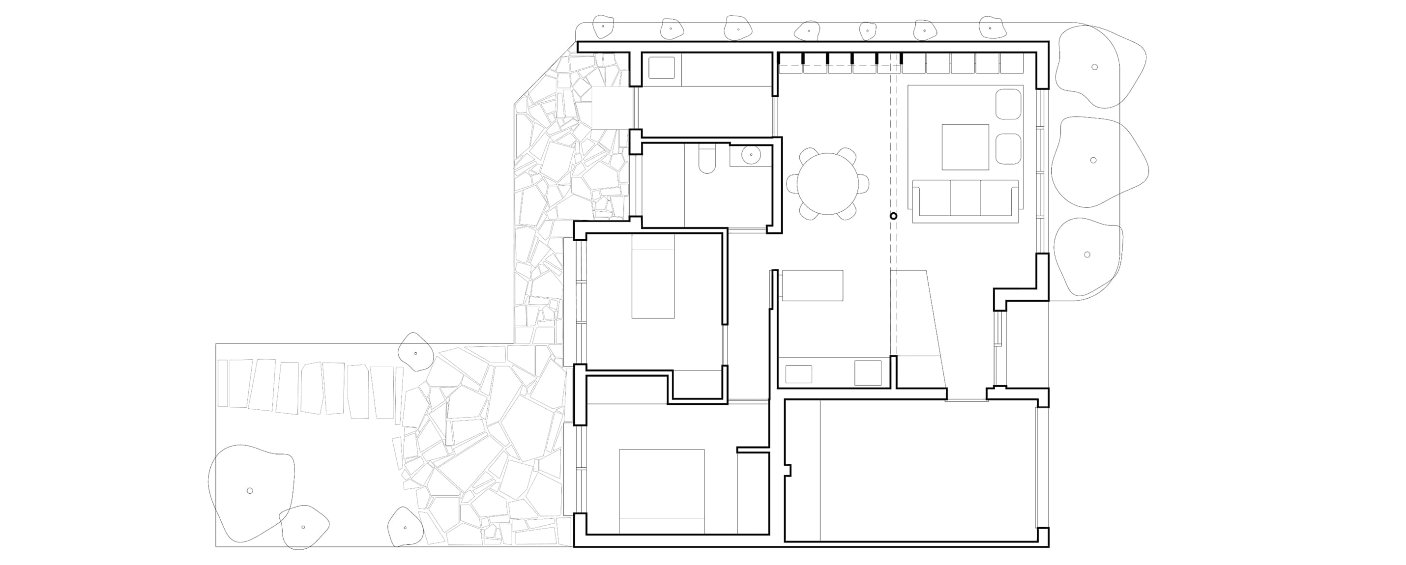
You wouldn’t think much of it from the street. A brick villa tucked in behind the Northcote Public Golf Course, now partially converted into public parkland. But this one’s part of a rare pocket: 33 villa units, built in the late '70s, many defined by clerestory rooflines more at home in industrial buildings than suburban housing. There’s no record of who designed them, so the KKAP project file simply labelled the author as “architects anonymous”.


















Enter project archive

Location
Northcote
Type
Residential
Internal Area
95sqm
Size
157sqm
Team
Kerry Kounnapis, Zachary McPherson
Images
Thurston Empson, Zachary McPherson